Portofoliu
Cu o bază solidă de peste 120 de clienți mulțumiți, vă prezentăm o parte din portofoliul nostru, acoperind domenii precum construcții civile, industriale și agricole.
Titlu proiect:
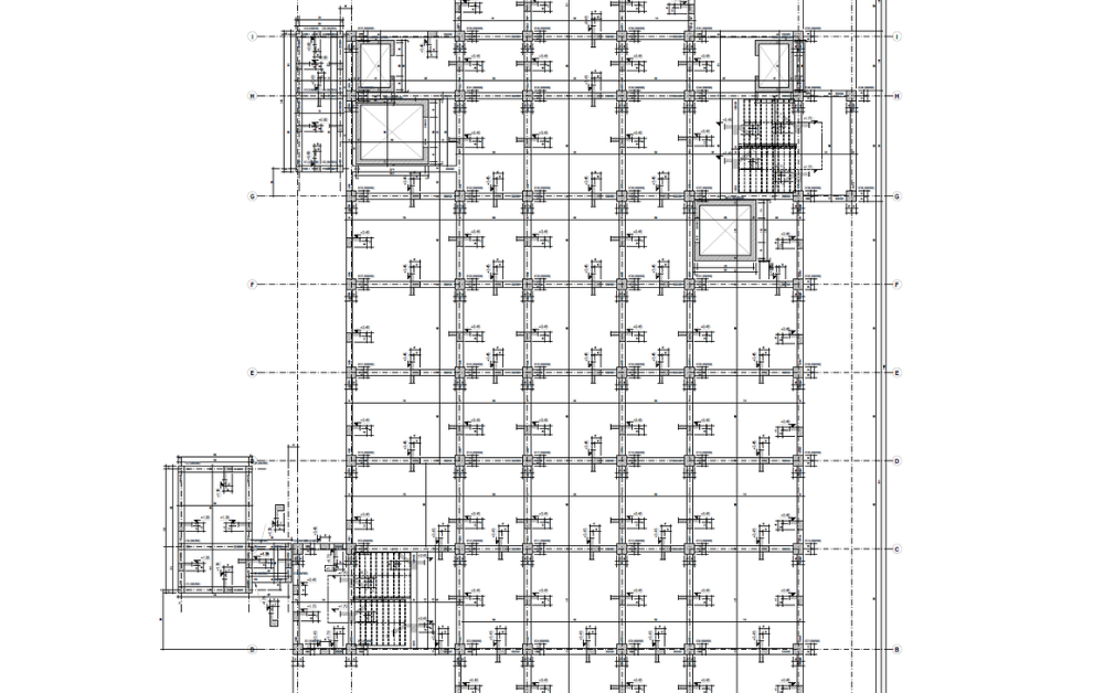
Bloc Locuinte Colective
Functiune:
Locuinte
Regim de inaltime:
P+5E
Locatie:
Slatina
Suprafata desfasurata:
1860mp
Tip structura de rezistenta:
Cadre beton armat
Titlu proiect:
Construire Corp Scoala
Functiune:
Scoala
Regim de inaltime:
P+2E
Locatie:
Slatina
Suprafata desfasurata:
1350mp
Tip structura de rezistenta:
Cadre beton armat
Titlu proiect:
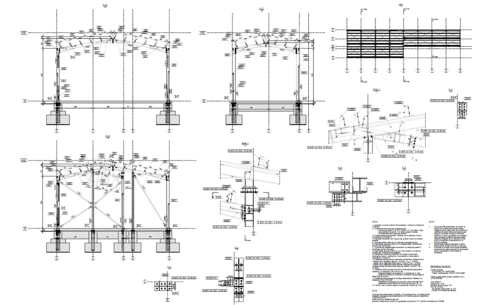
Copertina Industriala Depozitare Marfa
Functiune:
Depozitare Marfa
Regim de inaltime:
P
Locatie:
Bucuresti
Suprafata desfasurata:
1050mp
Tip structura de rezistenta:
Structura Metalica
Titlu proiect:
Construire Locuinta Individuala
Functiune:
Locuinta
Regim de inaltime:
P
Locatie:
Orsova
Suprafata desfasurata:
110mp
Tip structura de rezistenta:
Structura Metalica
Titlu proiect:
Copertina Depozitare Marfa
Functiune:
Depozitare Marfa
Regim de inaltime:
P
Locatie:
Bucuresti
Suprafata desfasurata:
220mp
Tip structura de rezistenta:
Structura Metalica
Titlu proiect:
Sopron Depozitare Marfa
Functiune:
Depozitare Marfa
Regim de inaltime:
P
Locatie:
Bucuresti
Suprafata desfasurata:
185mp
Tip structura de rezistenta:
Structura Metalica
Titlu proiect:
Construire Pensiune Regim Hotelier
Functiune:
Locuinta Regim Hotelier
Regim de inaltime:
P+1E
Locatie:
Constanta
Suprafata desfasurata:
430mp
Tip structura de rezistenta:
Cadre beton armat
Titlu proiect:
Construire spital D+P+3E
Functiune:
Activitati medicale
Regim de inaltime:
D+P+3E
Locatie:
Drobeta Turnu Severin
Suprafata desfasurata:
3800mp
Tip structura de rezistenta:
Cadre beton armat
Titlu proiect:
Construire locuinta D+P+E
Functiune:
Locuinta individuala
Regim de inaltime:
D+P+1E
Locatie:
Drobeta Turnu Severin
Suprafata desfasurata:
290mp
Tip structura de rezistenta:
Zidarie portanta
Titlu proiect:
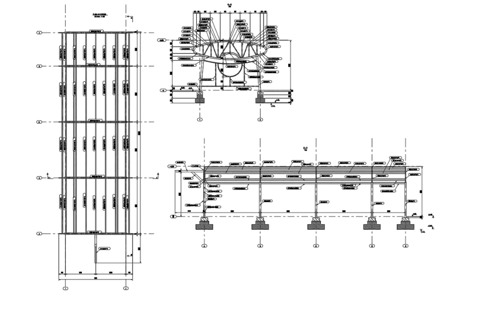
Construire sala evenimente si terasa
Functiune:
Sala evenimente
Regim de inaltime:
Parter
Locatie:
Eselnita - Mehedinti
Suprafata desfasurata:
350mp
Tip structura de rezistenta:
Structura metalica
Titlu proiect:
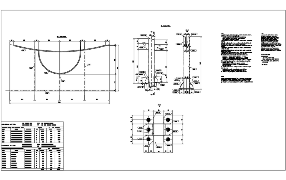
Centru procesare fructe
Functiune:
Productie si depozitare
Regim de inaltime:
Parter
Locatie:
Obrasia de Camp - Mehedinti
Suprafata desfasurata:
690mp
Tip structura de rezistenta:
Structura metalica
Titlu proiect:
Construire spalatorie auto, spatiu administrativ
Functiune:
Spalatorie Auto
Regim de inaltime:
Parter
Locatie:
Drobeta Turnu Severin
Suprafata desfasurata:
140mp
Tip structura de rezistenta:
Structura metalica
Titlu proiect:
Locuinta unifamiliala D+P+1E(M), terasa carport si imprejmuire
Functiune:
Locuinta
Regim de inaltime:
D+P+1E
Locatie:
Dumbravita - Timis
Suprafata desfasurata:
330mp
Tip structura de rezistenta:
Cadre beton armat
Titlu proiect:
Locuinta individuala P+M
Functiune:
locuinta
Regim de inaltime:
P+M
Locatie:
Drobeta-Turnu Severin
Suprafata desfasurata:
320mp
Tip structura de rezistenta:
Zidarie portanta
Titlu proiect:
Locuinta S+P+1E+M
Functiune:
locuinta
Regim de inaltime:
S+P+1E+M
Locatie:
Bucuresti
Suprafata desfasurata:
330mp
Tip structura de rezistenta:
Cadre beton armat
Titlu proiect:
Intrare in legalitate modernizare si extindere locuinta individuala
Functiune:
locuinta
Regim de inaltime:
P+M
Locatie:
Galati
Suprafata desfasurata:
180mp
Tip structura de rezistenta:
Cadre beton armat
Titlu proiect:
Extindere Service Auto
Functiune:
Service Auto
Regim de inaltime:
Parter
Locatie:
Drobeta Turnu Severin
Suprafata desfasurata:
190mp
Tip structura de rezistenta:
Zidarie portanta
Titlu proiect:
Construire locuinta P+M
Functiune:
Locuinta individuala
Regim de inaltime:
P+M
Locatie:
Bucuresti
Suprafata desfasurata:
160mp
Tip structura de rezistenta:
Cadre beton armat
Titlu proiect:
Construire locuinta individuala parter
Functiune:
Locuinta individuala
Regim de inaltime:
Parter
Locatie:
Bals-Olt
Suprafata desfasurata:
110mp
Tip structura de rezistenta:
Cadre beton armat
Titlu proiect:
Construire locuinta individuala P+1
Functiune:
Locuinta individuala
Regim de inaltime:
P+1
Locatie:
Bals-Olt
Suprafata desfasurata:
190mp
Tip structura de rezistenta:
Cadre beton armat
Titlu proiect:
Platformă de depozitare, unitate pentru raft de bază
Functiune:
Depozitare
Regim de inaltime:
Parter
Locatie:
Chiajna
Suprafata desfasurata:
100mp
Tip structura de rezistenta:
Structura metalica


























































































